ふじが丘東 第1-1号棟(売買 新築一戸建て) | 大分市 | 大分市周辺の売買物件情報はヤマダ不動産 大分わさだ店へ

ふじが丘東 第1-1号棟 | 大分市の不動産物件

「耐震等級3」取得物件!東南角地の4LDK!スーパーまで徒歩圏内で便利な立地!駐車場は並列で2台置けます!高台の閑静な住宅街!
【新築一戸建て】 新築 駐車場あり オール電化
価格 2,988万円 (税込)
豊肥本線 敷戸駅 徒歩30分
スマホ表示
物件コード:119656
所在地 建物面積
土地面積
間取り 築年月
大分県大分市900番187号 93.15m2
125.34m2
4LDK 2026/04

物件基本情報

▲外観パース(イメージです)
▲現況優先
物件種目 新築一戸建て
物件名称 ふじが丘東 第1-1号棟
所在地 大分県大分市900番187号
交通
豊肥本線 敷戸駅 徒歩30分
階数 2階建
建物構造 木造
建ぺい率/容積率 60% / 100%
駐車場 有 (2台)
学校 東稙田小学校 / 稙田南中学校
設備・条件
  • 汚水:公共下水
  • 水道:公営水道
  • TVドアホン
  • 追い焚き
  • オール電化
  • 洗浄便座
  • シャンプードレッサー
  • 浴室1坪以上
  • 床下収納
  • 浴室乾燥機
  • カウンターキッチン
  • 制震構造
  • IHクッキングヒーター
  • コンロ三口
  • システムキッチン
ヤマダ不動産 大分わさだ店
Tel097-588-8222
お気軽にお問い合わせください。

画像・写真

  • 現況優先
    現況優先
  • 周辺地図
    周辺地図
  • リビング 施工事例
    リビング 施工事例
  • キッチン 施工事例
    キッチン 施工事例
  • キッチン 施工事例
    キッチン 施工事例
  • 和室 施工事例
    和室 施工事例
  • 洗面所 施工事例
    洗面所 施工事例
  • バスルーム 施工事例
    バスルーム 施工事例
  • トイレ 施工事例
    トイレ 施工事例
  • 洋室 施工事例
    洋室 施工事例
  • 洋室 施工事例
    洋室 施工事例
  • 収納 施工事例
    収納 施工事例
  • バルコニー 施工事例
    バルコニー 施工事例
  • 玄関 施工事例
    玄関 施工事例
  • 玄関 施工事例
    玄関 施工事例

コメント

◆物件の詳細◆
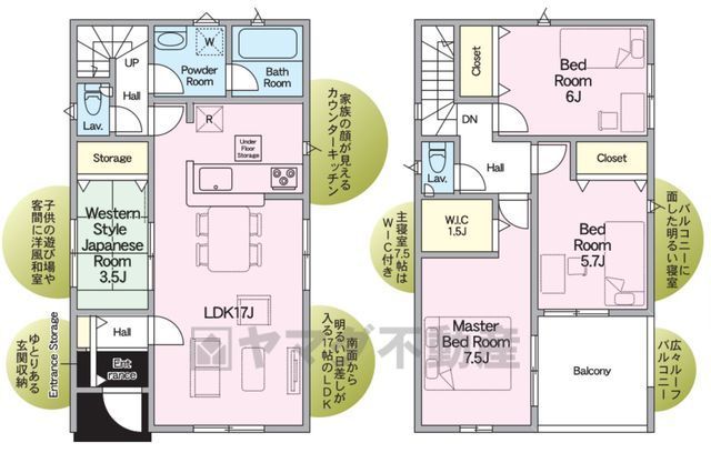
・「耐震等級3」取得物件!
・ゆとりある玄関収納
・南面から明るい日差しが入る約17帖のLDK
・2階の主寝室約7.5帖の部屋はウォークインクローゼット付き

※敷地内に電柱及び支線が入る場合があります
※図面と現況が相違する場合は現況を優先とします
※記載事項に誤りがある場合があります
※網戸・シャッター・面格子・フェンス・カーテンレール・テレビアンテナは別途見積
※電波障害による共聴アンテナの引き込みは買主負担

◆月々のローンの支払い◆
月々のローンの支払い相談も承っております。
詳しくは当店スタッフまで!

他にも沢山の物件情報をご紹介しております!
お気軽にお問い合わせください。

ヤマダ不動産 大分わさだ店
TEL:097-588-8222 まで!

周辺地図

地図を表示中...
ストリートビュー未対応エリアです。

物件詳細情報

物件用途 居住用 地目 宅地
間取り詳細 LDK17畳(1F)、和3.5畳(1F)、洋7.5畳(2F)、洋6畳(2F)、洋5.7畳(2F) 都市計画 市街化区域
建物向き 南東 用途地域 第一種低層住居専用地域
土地面積基準 公簿 接道 公道 南 幅員11.9m
公道 東 幅員6.1m
土地権利 所有権 私道面積 -
借地条件 - 道路位置指定 -
地代 - 不適合接道 -
建築確認番号 第R07SHC124609号 セットバック -
現況 - 国土法届出 不要
引渡時期 期日指定 (2026年4月中旬) 取引態様 一般
設備その他 -
特記事項 -
備考 -
情報更新日 2026/03/06 広告有効期限 2026/03/27
電話でお問い合わせ
ヤマダ不動産 大分わさだ店 店舗情報
[所在地] 大分県大分市大字市1206 家電住まいる館YAMADAわさだ店 2階
[営業時間] 10:00~19:00 水曜定休
Tel097-588-8222
お気軽にお問い合わせください。