緑が丘 第2-2号棟(売買 新築一戸建て) | 大分市緑が丘 | 大分市周辺の売買物件情報はヤマダ不動産 大分わさだ店へ

緑が丘 第2-2号棟 | 大分市緑が丘の不動産物件

「耐震等級3」取得で家族みんなが安心して暮らせる。角地で日当たり良好、サービスルームや広々バルコニーと魅力が詰まったお家。
【新築一戸建て】 新築 駐車場あり オール電化
価格 2,588万円 (税込)
久大本線 向之原駅 徒歩43分
スマホ表示
物件コード:120645
所在地 建物面積
土地面積
間取り 築年月
大分県大分市緑が丘4丁目3013番280号 95.98m2
130.53m2
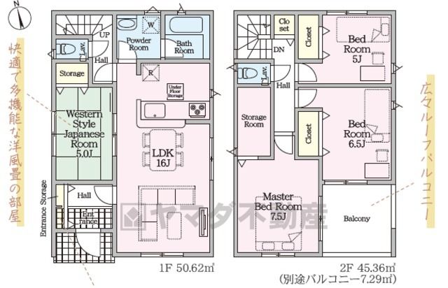
4SLDK 2026/04

物件基本情報

▲外観パースはイメージです
▲図面と現況が異なる場合は現況を優先させていただきます。
物件種目 新築一戸建て
物件名称 緑が丘 第2-2号棟
所在地 大分県大分市緑が丘4丁目3013番280号
交通
久大本線 向之原駅 徒歩43分
久大本線 豊後国分駅 徒歩50分
階数 2階建
建物構造 木造
建ぺい率/容積率 60% / 100%
駐車場 有 (3台)
学校 横瀬西小学校 / 稙田西中学校
設備・条件
  • 汚水:公共下水
  • 水道:公営水道
  • TVドアホン
  • 追い焚き
  • オール電化
  • 洗浄便座
  • シャンプードレッサー
  • 浴室1坪以上
  • 床下収納
  • 浴室乾燥機
  • カウンターキッチン
  • 制震構造
  • IHクッキングヒーター
  • システムキッチン
  • バス・トイレ別
ヤマダ不動産 大分わさだ店
Tel097-588-8222
お気軽にお問い合わせください。

画像・写真

  • 図面と現況が異なる場合は現況を優先させていただきます。
    図面と現況が異なる場合は現況を優先させていただきます。
  • 図面と現況が異なる場合は現況を優先させていただきます。
    図面と現況が異なる場合は現況を優先させていただきます。
  • リビング 施工事例
    リビング 施工事例
  • キッチン 施工事例
    キッチン 施工事例
  • キッチン 施工事例
    キッチン 施工事例
  • 和室 施工事例
    和室 施工事例
  • 洗面所 施工事例
    洗面所 施工事例
  • バスルーム 施工事例
    バスルーム 施工事例
  • トイレ 施工事例
    トイレ 施工事例
  • 洋室 施工事例
    洋室 施工事例
  • 洋室 施工事例
    洋室 施工事例
  • 収納 施工事例
    収納 施工事例
  • バルコニー 施工事例
    バルコニー 施工事例
  • 玄関 施工事例
    玄関 施工事例
  • 玄関 施工事例
    玄関 施工事例

コメント

◆物件の詳細◆
・耐震性、耐風性に優れ、家族で永く安心して暮らせる設計
・横瀬西小学校まで徒歩約12分(約950m)
・閑静な住宅街にあり、公園もすぐ近く
・角地で日当たりや風通し良好
・駐車場は3台可能で来客時も安心(車種による)
・リビング階段で毎日家族が顔を合わせられる間取り
・広々ルーフバルコニーあり
※敷地内に電柱及び支線が入る場合があります。
※TVアンテナ・シャッター・面格子・網戸・カーテンレール・照明等は付きません。
※図面と現況が相違する場合は、現況を優先とします。
※車、植栽、外構、家具等はイメージです。

◆購入・月々のローン支払い◆
当社では月々のローンの支払い相談も承っております。
お客様一人一人に寄り添ったご提案をさせていただきます。
詳しくはスタッフまでご相談ください!

この他にも沢山の物件をご紹介させていただきます!
お家探しはヤマダ不動産大分わさだ店まで!

周辺地図

地図を表示中...
ストリートビュー未対応エリアです。

物件詳細情報

物件用途 居住用 地目 宅地
間取り詳細 LDK16畳(1F)、和5畳(1F)、洋7.5畳(2F)、洋6.5畳(2F)、洋5畳(2F) 都市計画 市街化区域
建物向き 用途地域 第一種低層住居専用地域
土地面積基準 公簿 接道 公道 南 幅員6m (接面6.4m)
公道 西 幅員6.3m (接面13.3m)
土地権利 所有権 私道面積 -
借地条件 - 道路位置指定 -
地代 - 不適合接道 -
建築確認番号 第R07SHC127080号 セットバック -
現況 - 国土法届出 不要
引渡時期 相談 取引態様 一般
設備その他 -
特記事項 -
備考 -
情報更新日 2026/03/03 広告有効期限 2026/03/24
電話でお問い合わせ
ヤマダ不動産 大分わさだ店 店舗情報
[所在地] 大分県大分市大字市1206 家電住まいる館YAMADAわさだ店 2階
[営業時間] 10:00~19:00 水曜定休
Tel097-588-8222
お気軽にお問い合わせください。

このページをご覧の方に
おすすめの不動産物件