明磧町1丁目 3期2号棟(売買 新築一戸建て) | 大分市 | 大分市周辺の売買物件情報はヤマダ不動産 大分わさだ店へ

明磧町1丁目 3期2号棟 | 大分市の不動産物件

最寄りのスーパーマックスバリュ南大分店まで徒歩約3分!車を3台置けます!2階には広々バルコニーとWIC付き!
【新築一戸建て】 新築 駐車場あり
価格 2,998万円 (税込)
久大本線 南大分駅 徒歩14分
スマホ表示
物件コード:118833
所在地 建物面積
土地面積
間取り 築年月
大分県大分市44番16号 104.08m2
150.57m2
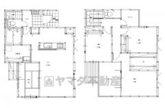
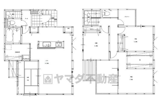
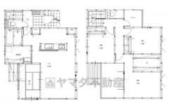
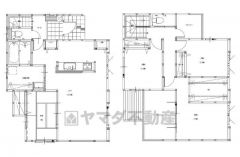
4LDK 2026/02

物件基本情報

▲外観パース(イメージです)
▲現況優先
物件種目 新築一戸建て
物件名称 明磧町1丁目 3期2号棟
所在地 大分県大分市44番16号
交通
久大本線 南大分駅 徒歩14分
階数 2階建
建物構造 木造
建ぺい率/容積率 60% / 162%
駐車場 有 (3台)
学校 南大分小学校 / 南大分中学校
設備・条件
  • ガス:個別プロパン
  • 汚水:個別浄化槽
  • 水道:公営水道
  • Wクローゼット
  • 洗浄便座
  • シャンプードレッサー
  • コンロ三口
  • システムキッチン
ヤマダ不動産 大分わさだ店
Tel097-588-8222
お気軽にお問い合わせください。

画像・写真

  • 外観パース(イメージです)
    外観パース(イメージです)
  • 外観パース(イメージです)
    外観パース(イメージです)
  • 外観パース(イメージです)
    外観パース(イメージです)
  • 外観パース(イメージです)
    外観パース(イメージです)
  • 外観パース(イメージです)
    外観パース(イメージです)
  • 外観パース(イメージです)
    外観パース(イメージです)
  • 外観パース(イメージです)
    外観パース(イメージです)
  • 現況優先
    現況優先
  • 地図
    地図

コメント

◆物件の詳細◆
・アイランドキッチンで家族みんなでお料理を!
・車を3台(車種による)並列駐車できます
・約18帖の広々LDK
・全居室収納あり

※引き渡し時期は相談となります
網戸・照明器具・カーテンレール・CATV等は別途注文となります。
図面と現況が異なる場合は現況優先となります。

お気軽にお問い合わせください。
ヤマダ不動産 大分わさだ店
TEL:097-588-8222 まで!

周辺地図

地図を表示中...
ストリートビュー未対応エリアです。

物件詳細情報

物件用途 居住用 地目 宅地
間取り詳細 LDK18.3畳(1F)、和5畳(1F)、洋7.5畳(2F)、洋5.2畳(2F) 都市計画 市街化区域
建物向き 用途地域 第二種中高層住居専用地域
土地面積基準 公簿 接道 公道 東 幅員4m (接面13.4m)
土地権利 所有権 私道面積 -
借地条件 - 道路位置指定 -
地代 - 不適合接道 -
建築確認番号 第R07SHC120510号 セットバック -
現況 - 国土法届出 不要
引渡時期 相談 取引態様 一般
設備その他 -
特記事項 -
備考 -
情報更新日 2026/01/22 広告有効期限 2026/02/12
電話でお問い合わせ
ヤマダ不動産 大分わさだ店 店舗情報
[所在地] 大分県大分市大字市1206 家電住まいる館YAMADAわさだ店 2階
[営業時間] 10:00~19:00 水曜定休
Tel097-588-8222
お気軽にお問い合わせください。