三川上 第2-2号棟(売買 新築一戸建て) | 大分市三川上 | 大分市周辺の売買物件情報はヤマダ不動産 大分わさだ店へ

三川上 第2-2号棟 | 大分市三川上の不動産物件

「耐震等級3」取得物件!周辺環境良好な住宅街!
【新築一戸建て】 新築 駐車場あり オール電化
価格 2,488万円 (税込)
日豊本線 鶴崎駅 徒歩27分
スマホ表示
物件コード:119341
所在地 建物面積
土地面積
間取り 築年月
大分県大分市三川上3丁目2番3号 98.81m2
138.67m2
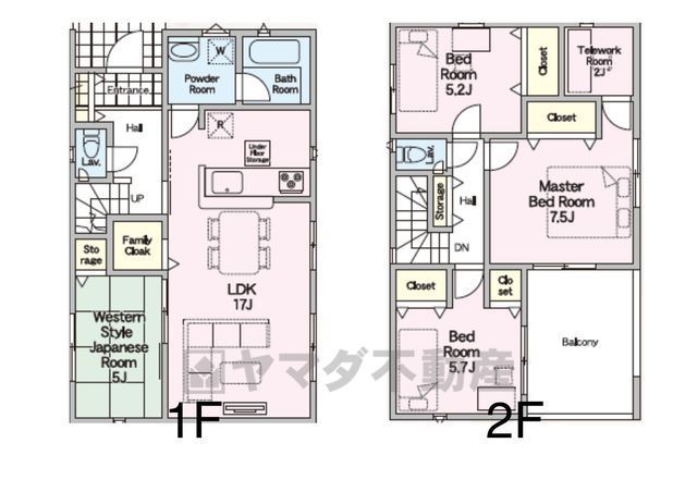
4LDK 2026/03

物件基本情報

▲外観パース(イメージです)
▲現況優先
物件種目 新築一戸建て
物件名称 三川上 第2-2号棟
所在地 大分県大分市三川上3丁目2番3号
交通
日豊本線 鶴崎駅 徒歩27分
階数 2階建
建物構造 木造
建ぺい率/容積率 60% / 200%
駐車場 有 (3台)
学校 桃園小学校 / 原川中学校
設備・条件
  • 汚水:公共下水
  • 水道:公営水道
  • TVドアホン
  • オール電化
  • 洗浄便座
  • シャンプードレッサー
  • 床下収納
  • 浴室乾燥機
  • カウンターキッチン
  • 制震構造
  • IHクッキングヒーター
  • システムキッチン
ヤマダ不動産 大分わさだ店
Tel097-588-8222
お気軽にお問い合わせください。

画像・写真

  • 現況優先
    現況優先
  • 周辺地図
    周辺地図
  • リビング 施工事例
    リビング 施工事例
  • キッチン 施工事例
    キッチン 施工事例
  • キッチン 施工事例
    キッチン 施工事例
  • 和室 施工事例
    和室 施工事例
  • 洗面所 施工事例
    洗面所 施工事例
  • バスルーム 施工事例
    バスルーム 施工事例
  • トイレ 施工事例
    トイレ 施工事例
  • 洋室 施工事例
    洋室 施工事例
  • 洋室 施工事例
    洋室 施工事例
  • 収納 施工事例
    収納 施工事例
  • バルコニー 施工事例
    バルコニー 施工事例
  • 玄関 施工事例
    玄関 施工事例
  • 玄関 施工事例
    玄関 施工事例

コメント

◆物件の詳細◆
・「耐震等級3」取得物件!
・広々17帖のLDK!
・あると便利なテレワークルーム!
※敷地内に電柱及び支線が入る場合があります
※図面と現況が相違する場合は現況を優先とします
※記載事項に誤りがある場合があります
※網戸・シャッター・面格子・フェンス・カーテンレール・テレビアンテナは別途見積
※電波障害による共聴アンテナの引き込みは買主負担

◆月々のローンの支払い◆
月々のローンの支払い相談も承っております。
詳しくは当店スタッフまで!

他にも沢山の物件情報をご紹介しております!
お気軽にお問い合わせください。

ヤマダ不動産 大分わさだ店
TEL:097-588-8222 まで!

周辺地図

地図を表示中...
ストリートビュー未対応エリアです。

物件詳細情報

物件用途 居住用 地目 宅地
間取り詳細 LDK17畳(1F)、和5畳(1F)、洋7.5畳(2F)、洋5.7畳(2F)、洋5.2畳(2F) 都市計画 市街化区域
建物向き 用途地域 第二種中高層住居専用地域
土地面積基準 公簿 接道 公道 北 幅員5.9m
土地権利 所有権 私道面積 -
借地条件 - 道路位置指定 -
地代 - 不適合接道 -
建築確認番号 第R07SHC125161号 セットバック -
現況 - 国土法届出 不要
引渡時期 期日指定 (2026年4月上旬) 取引態様 一般
設備その他 -
特記事項 -
備考 -
情報更新日 2026/02/20 広告有効期限 2026/03/13
電話でお問い合わせ
ヤマダ不動産 大分わさだ店 店舗情報
[所在地] 大分県大分市大字市1206 家電住まいる館YAMADAわさだ店 2階
[営業時間] 10:00~19:00 水曜定休
Tel097-588-8222
お気軽にお問い合わせください。